APROVADO ESTUDO PARA REQUALIFICAÇÃO DA ESCOLA PINHAL DO REI
O estudo prévio para a requalificação da Escola Secundária Pinhal do Rei, situada no lugar da Boavista, na Marinha Grande, foi aprovado pela Câmara Municipal, estimando um investimento superior a 8 milhões de euros.
A Escola foi construída em 1987 e nunca foi alvo de obras de requalificação por parte do Estado, pelo que carece de intervenções. Com a Transferência de Competências que o Governo passou para as autarquias, esta escola ficou agora da responsabilidade da Câmara, sem que tenha vindo o devido envelope financeiro para a sua requalificação.
O estudo agora desenvolvido, foi elaborado no âmbito do Plano de Recuperação e Resiliência (PRR), ao qual o Município tenciona candidatar-se, e tem como objetivos corrigir os problemas de construção existentes; melhorar as condições de adaptabilidade, segurança, acessibilidade e conforto; reformular os espaços, tornando-os acessíveis e inclusivos para pessoas portadoras de mobilidade condicionada; reabilitar as instalações escolares, promovendo a sua modernização, de forma a dar resposta aos desafios que atualmente se colocam à escola, garantindo condições para o sucesso de ensino e aprendizagem.
Está considerado em todos os edifícios a substituição da caixilharia exterior, substituição das coberturas, aplicação de isolamento pelo exterior, construção de acessibilidades, substituição das redes das infraestruturas e luminárias, requalificação de todas as instalações sanitárias e sua adaptação para pessoas com mobilidade reduzida.
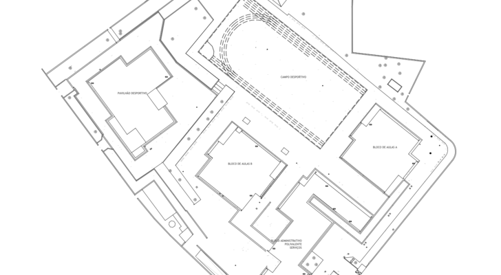
Os Blocos de aulas manter-se-ão com a atual configuração. O Bloco Administrativo contemplará a biblioteca, fazendo-se acompanhar do pátio exterior para uso de uma zona de leitura; o anfiteatro; um auditório e uma área de exposição. O bar e a reprografia estão projetados para o átrio principal deste bloco, com configurações praticamente simétricas. O pavilhão desportivo terá lugar ao cumprimento das acessibilidades com a reformulação dos espaços, tornando-os inclusivos.




Para saber mais: