PROJETO DE EXECUÇÃO DO AUDITÓRIO ANTÓNIO CAMPOS APROVADO
A Câmara Municipal da Marinha Grande aprovou, no passado dia 27 de dezembro de 2023, o projeto de execução do Auditório António Campos, situado na Praia da Vieira, que vai implicar um investimento estimado superior a um milhão de euros.
Para o presidente da Câmara Municipal, Aurélio Ferreira, “a requalificação proposta vai respeitar a história do espaço e a identidade do lugar, através do recurso a materiais como a madeira e a manutenção da arquitetura original do edifício. Pretendemos que este equipamento possa ser mais um elemento potenciador do turismo da Praia da Vieira, através da programação cultural que irá receber, como palestras, projeção de cinema, apresentação de espetáculos de dança, teatro ou música, exposições e outros eventos”.
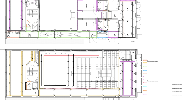
Contempla-se um auditório com 100 lugares de plateia; uma área de base do palco com espaço livre, que poderá funcionar como sala de ensaio ou área expositiva temporária. Existirá uma área expositiva permanente divida em duas salas e bilheteira com possibilidade de inclusão de copa com acesso interior e exterior. Estão projetadas instalações sanitárias, as áreas de arrumos e técnica junto ao núcleo central.
No interior será feita uma intervenção de novos elementos estruturais em madeira, lembrando as antigas habitações da Praia da Vieira, também elas construídas em madeira. Também se prevê a beneficiação do pequeno largo exterior.
A estimativa orçamental do projeto de execução é de 1.135.321,78 €.
O edifício foi mandado construir em 1962, pelo seu então proprietário Ângelo Rodrigues Valgode, para ser uma “Casa de Espectáculos” destinada a cinema, bailes públicos e variedades e restauração. Em 1996 a parte do complexo original, entretanto destacada, onde hoje existe o Auditório António Campos, foi adquirida pelo Município da Marinha Grande, que ali realizou obras de melhoramento, para o reabrir ao público entre 2001 e 2018.




Para saber mais: