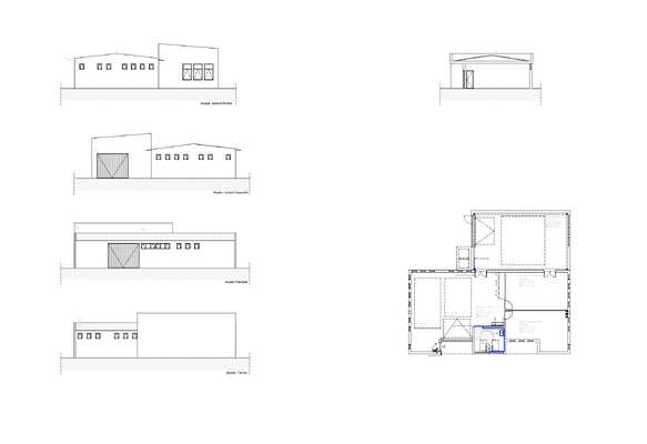
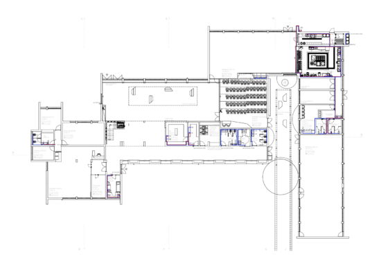
APROVADO ANTEPROJETO DA REQUALIFICAÇÃO DA ESCOLA PINHAL DO REI
A Câmara Municipal da Marinha Grande aprovou, no dia 8 de abril, o anteprojeto de requalificação e modernização da Escola Secundária Pinhal do Rei, que prevê um investimento de cerca de 8,3 milhões de euros.
A proposta de intervenção desenvolvida no âmbito do Plano de Recuperação e Resiliência (PRR), tem como objetivo a requalificação e modernização dos equipamentos escolares, procurando prevenir o insucesso e o abandono escolar precoce, garantir condições para o sucesso de ensino/aprendizagem e, por fim, reduzir as assimetrias regionais e reforço da coesão territorial.
As obras vão corrigir os problemas de construção existente e melhorar as condições de adaptabilidade, segurança e acessibilidade e conforto, assim como proceder a uma reabilitação das instalações escolares, promovendo a sua modernização, de forma a dar resposta aos desafios que atualmente se colocam à escola.
No âmbito deste anteprojeto, considera-se fundamental a reformulação dos espaços, tornando-os acessíveis e inclusivos, para pessoas portadoras de mobilidade condicionada.
Para saber mais: